ローズハイツ宝塚 11階
★こだわりで選びたい方におすすめ☆
★宝塚市エリアで住まいをお探しなら「ローズハイツ宝塚」☆
★家から121mのところに宝塚駅前郵便局があります☆
★こちらは南西向きの物件です☆
★新居をお求めなら、地域に詳しい当社にご依頼ください☆
★お客様のこだわりやご要望などがあれば、メール又はお電話から当社までお申し付けください(^o^)
ローンシミュレーションこの物件を購入した場合の、月々の支払い価格の一例です。借り入れを保証するものではございません。
- 返済期間
-
- 金利
-
- ボーナス時の増額(1回分)
-
- 借入金額:
-
- 頭金:
-

- 毎月の返済額:
(※元利均等方式 金利5.00%まで ※返済年数5~50年まで入力できます)
(※ボーナスは年2回で計算しています。1000万円まで入力できます)
(※物件購入時、その他諸費用が発生する場合がございます)
担当者のコメント NEXTHOPE株式会社

- 快適な地上12階建ての物件♪オートロック付きなので、安心して暮らすことができます♪9.18㎡の広さのバルコニー付き物件です♪システムキッチンは必要な物が組み込まれているため、すぐ調理できます♪通勤や通学に阪急宝塚本線宝塚の利用が欠かせないなら、不動産の購入をご検討ください♪こだわりやご要望などがあれば、ご連絡をお待ちしております(^o^)
ポイント・特徴
物件概要
【中古マンション】 物件番号:76318880 情報更新日:2026年04月17日 次回更新予定日:2026年05月01日| 所在地 | 兵庫県宝塚市栄町2丁目 | ||
|---|---|---|---|
| 交通 | |||
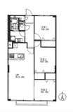
| 間取り/詳細 |
3LDK+1S(納戸) LDK 14.2帖/洋室 6.1帖/洋室 6.0帖/和室 4.5帖/S 3.0帖 |
||
| 専有面積/バルコニー面積 | 74.97㎡/9.18㎡ | ルーフバルコニー面積/テラス面積/専用庭面積 | -/-/- |
| 価格 | 3,298万円 | ||
| 管理費 | 8,030円 | ||
| 修繕積立金 | 10,600円 | 修繕積立基金 | - |
| 権利金 | - | 駐車場/月額料金 | 空有/9,000円 (税込) 駐車場保証金:使用料の3ヶ月分 |
| 土地の敷金/保証金 | -/- | 借地料/借地期間 | -/- |
| 土地権利 | 所有権 | 国土法届出要否 | 不要 |
| 用途地域 | 商業 | 地勢 | 平坦 |
| 種別/構造 | 中古マンション/鉄骨鉄筋コンクリート | 向き | 南西 |
| 築年月(築年数) | 1981年 6月 (築44年) | ||
| 所在階/階建 | 11階/12階建 | 棟総戸数/販売戸数 | 165戸/1戸 |
| 管理組合有無 | 有 | 管理形態 | 管理会社に全部委託 |
| 管理員の勤務形態 | 日勤 | 管理会社 | 日本管財住宅管理株式会社 |
| 取引態様 | 仲介 | 現況 | 空家 |
| 引渡し | 即時 | 建築確認番号 | - |
| 物件番号 | 76318880 | 取引条件の有効期限 | 2026年05月01日 |
| リフォーム |
2023年4月 キッチン 浴室 トイレ 壁 床 全室 洗面台 |
||
| 設備条件 |
|
||
| 備考 | 使い方も様々な、サービスルーム付き3SLDK物件です!3口コンロが付いているので、3つの料理を同時に進められて時短につながります!動線を意識したデザインのシステムキッチン付きで作業能率が上がります!駐車スペースの月額請求額は、9000円です!宝塚市の不動産情報をお求めなら、信頼と実績を誇る当社にお任せください!経験豊富な当社スタッフがしっかりとサポートいたします(*^_^*) | ||
| 条件(その他) | 駐車場リモコン保証金一括:1万円 | ||
| 取扱会社 |
|
||
※地図上に表示される物件の位置は付近住所に所在することを表すものであり、実際の物件所在地とは異なる場合がございます。


















