ラ・ビスタ宝塚ウエストウイング・オクシアの過去掲載物件情報現況の確認はお気軽にお問い合わせください。
| 所在地 | 兵庫県宝塚市すみれガ丘3丁目 | ||
|---|---|---|---|
| 交通 | |||
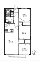
| 築年月(築年数) | 1996年 2月 ( 築29年 ) | 方位 | 南 |
| 種別/構造 | 中古マンション/鉄筋コンクリート | 所在階/階建 | 11階/ 15階建 |
| 設備条件 |
|
||
【外観】【ラ・ビスタ宝塚ウエストウイング・オクシア】地上15階建 総戸数221戸 ご紹介のお部屋は11階部分です♪令和7年3月室内リフォーム済みです!!












