日興宝塚南口スカイマンション 9階
バルコニーの広さは8.4平米です♪システムキッチンは必要な物が組み込まれているため、すぐ調理できます♪傾斜が少ないのでお年よりの方にもやさしい平坦地です♪すぐに入居できるので、お待ちいただくことはありません♪不動産のことで確認したいことがあるなら、メール又はお電話にてご連絡ください♪当社は豊富な経験と知識を持っているので、丁寧にお答えします(*^^*)
ローンシミュレーションこの物件を購入した場合の、月々の支払い価格の一例です。借り入れを保証するものではございません。
- 返済期間
-
- 金利
-
- ボーナス時の増額(1回分)
-
- 借入金額:
-
- 頭金:
-

- 毎月の返済額:
(※元利均等方式 金利5.00%まで ※返済年数5~50年まで入力できます)
(※ボーナスは年2回で計算しています。1000万円まで入力できます)
(※物件購入時、その他諸費用が発生する場合がございます)
担当者のコメント NEXTHOPE株式会社

- 宝塚市立宝塚中学校が徒歩14分で通学にも便利です♪2LDKの物件です♪すぐに入居できるので、お待ちいただくことはありません♪専用アンテナを用意する必要なく、BS衛星放送を楽しめます♪帰ってくるとほっとするようなお住まいが良いですよね♪ご希望にマッチした不動産を購入して、さらに快適な毎日を送りましょう(^^)
ポイント・特徴
物件概要
【中古マンション】 物件番号:101532640 情報更新日:2026年04月17日 次回更新予定日:2026年05月01日| 所在地 | 兵庫県宝塚市武庫川町 | ||
|---|---|---|---|
| 交通 | |||
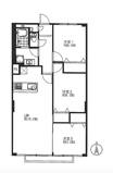
| 間取り/詳細 | 2LDK | ||
| 専有面積/バルコニー面積 | 67.80㎡/8.40㎡ | ルーフバルコニー面積/テラス面積/専用庭面積 | -/-/- |
| 価格 | 2,480万円 | ||
| 管理費 | 9,800円 | ||
| 修繕積立金 | 18,650円 | 修繕積立基金 | - |
| 権利金 | - | 駐車場/月額料金 | 無/- |
| 土地の敷金/保証金 | -/- | 借地料/借地期間 | -/- |
| 土地権利 | 所有権 | 国土法届出要否 | 不要 |
| 用途地域 | 商業 | 地勢 | 平坦 |
| 種別/構造 | 中古マンション/鉄骨鉄筋コンクリート | 向き | 南西 |
| 築年月(築年数) | 1978年 2月 (築48年) | ||
| 所在階/階建 | 9階/14階建 | 棟総戸数/販売戸数 | 107戸/1戸 |
| 管理組合有無 | 有 | 管理形態 | 管理会社に全部委託 |
| 管理員の勤務形態 | 日勤 | 管理会社 | (株)長谷工コミュニティ |
| 取引態様 | 仲介 | 現況 | 空家 |
| 引渡し | 即時 | 建築確認番号 | - |
| 物件番号 | 101532640 | 取引条件の有効期限 | 2026年05月01日 |
| リフォーム |
2025年6月 キッチン 浴室 トイレ 壁 床 全室 洗面台 電気温水気 |
||
| 設備条件 |
|
||
| 備考 | 宝塚市エリアでの住まいなら、住み心地も快適な「日興宝塚南口スカイマンション」はいかがでしょうか!徒歩14分の距離に宝塚市立宝塚中学校があるのも魅力!宝塚市で住まい探しをするなら、交通の利便性の高い阪急今津線宝塚南口周辺はいかがでしょうか!こだわりやご要望などございましたら、当社までお気軽にお問い合わせください(^^) | ||
| 取扱会社 |
|
||
※地図上に表示される物件の位置は付近住所に所在することを表すものであり、実際の物件所在地とは異なる場合がございます。


















