伊丹市南町1丁目中古戸建
暮らしに便利なスーパーマルハチ 新伊丹店(スーパー)がこちらから424mのところにあります☆こちらの4399万円の物件はいかがでしょうか☆3口コンロが付いているので、たくさん作る場合でも同時に料理を進められます☆当社では、伊丹市エリアや阪急伊丹線稲野付近での一戸建て情報をご紹介いたします☆まずはお気軽にお問い合わせください(*^_^*)
ローンシミュレーションこの物件を購入した場合の、月々の支払い価格の一例です。借り入れを保証するものではございません。
- 返済期間
-
- 金利
-
- ボーナス時の増額(1回分)
-
- 借入金額:
-
- 頭金:
-

- 毎月の返済額:
(※元利均等方式 金利5.00%まで ※返済年数5~50年まで入力できます)
(※ボーナスは年2回で計算しています。1000万円まで入力できます)
(※物件購入時、その他諸費用が発生する場合がございます)
担当者のコメント NEXTHOPE株式会社

- 「伊丹市南町1丁目中古戸建」のここがイチオシ♪歩いて424mの場所に、スーパーマルハチ 新伊丹店があります♪システムキッチン付きの物件です♪手洗いや歯磨きに必要な洗面台も備え付けられています♪伊丹市には多種多様な一戸建てがございますので、マイホームの購入をお考えなら、ぜひ当社までご連絡ください♪お待ちしております(^o^)
ポイント・特徴
物件概要
【中古一戸建】 物件番号:88936922 情報更新日:2026年03月16日 次回更新予定日:2026年03月30日| 所在地 | 兵庫県伊丹市南町1丁目 | ||
|---|---|---|---|
| 交通 | |||
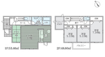
| 間取り/詳細 | 3LDK/ | 建物面積(坪数) | 89.59㎡(27.1坪) |
| 価格 | 4,399万円 | ||
| 駐車場/月額料金 | 有/- | ||
| 土地の敷金/保証金 | -/- | 借地料/借地期間 | -/- |
| 土地権利 | 所有権 | 土地面積(坪数) | 80.01㎡(24.20坪) |
| 傾斜地部分面積 | - | 路地状敷地 | - |
| 私道負担面積/セットバック | -/無 | 高圧線下面積 | - |
| 地目/地勢 | 宅地/平坦 | 接道状況 | 一方(東 公道 5.9m 間口 6.9m) |
| 建ぺい率/容積率 | 60%/200% | 用途地域 | 第一種中高層住居専用 |
| 都市計画 | 市街化区域 | 種別/構造 | 中古一戸建/木造 |
| 階建 | 2階建 | 築年月(築年数) | 2002年 10月 (築23年) |
| 総区画数/販売区画数 | 1区画/1区画 | 向き | - |
| 現況 | 空家 | その他の法令上の制限 | - |
| 取引態様/引渡時期 | 仲介/即時 | 建築確認番号 | - |
| 物件番号 | 88936922 | 取引条件の有効期限 | 2026年03月30日 |
| リフォーム |
2024年12月 キッチン 浴室 トイレ 壁 床 全室 洗面台 建具 |
||
| 設備条件 |
|
||
| 備考 | 歩いて424mの場所に、スーパーマルハチ 新伊丹店があります!使いやすくおしゃれでニーズの高いシステムキッチン付きの物件です!3口コンロが付いているので、同時にたくさん料理できるので毎日忙しい人におすすめです!伊丹市の阪急伊丹線稲野周辺で住まい探しをするのであれば、当社までご連絡ください!当社でなら、きっと素敵な一戸建てが見つかることでしょう(^_^) | ||
| 取扱会社 |
|
||
※地図上に表示される物件の位置は付近住所に所在することを表すものであり、実際の物件所在地とは異なる場合がございます。


















