伊丹市寺本5丁目中古戸建
「伊丹市寺本5丁目中古戸建」:伊丹市エリアの新居にピッタリ♪南側に道路があるため十分な日当たりが確保できます♪中古の戸建て物件は、経済的なメリットが大きいのが特徴です♪3SLDKの快適な生活空間が魅力の、一押し物件です♪伊丹市や阪急伊丹線伊丹付近でなら、お客様に合った一戸建てがきっと見つかります♪まずはご希望条件をスタッフまでお伝えください(*^^*)
ローンシミュレーションこの物件を購入した場合の、月々の支払い価格の一例です。借り入れを保証するものではございません。
- 返済期間
-
- 金利
-
- ボーナス時の増額(1回分)
-
- 借入金額:
-
- 頭金:
-

- 毎月の返済額:
(※元利均等方式 金利5.00%まで ※返済年数5~50年まで入力できます)
(※ボーナスは年2回で計算しています。1000万円まで入力できます)
(※物件購入時、その他諸費用が発生する場合がございます)
担当者のコメント NEXTHOPE株式会社

- 「伊丹市寺本5丁目中古戸建」のここがイチオシ!西伊丹幼稚園まで徒歩5分なので、送り迎えも楽です!平成29年3月築の物件で、新生活をお考えの方にオススメです!価格も3980万円と、この条件の物件としては魅力的です!伊丹市での住まい探しをサポートいたします!ご希望の条件などがお決まりなら、当社スタッフまで是非お伝えください!お問い合わせをお待ちしております(*^^*)
ポイント・特徴
物件概要
【中古一戸建】 物件番号:99634792 情報更新日:2026年01月16日 次回更新予定日:2026年01月30日| 所在地 | 兵庫県伊丹市寺本5丁目 | ||
|---|---|---|---|
| 交通 | |||
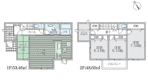
| 間取り/詳細 |
3LDK+1S(納戸)/ LDK 17.4帖/洋室 4.8帖/洋室 5.7帖/洋室 6.5帖/S 3.2帖 |
建物面積(坪数) | 89.63㎡(27.11坪) |
| 価格 | 3,980万円 | ||
| 駐車場/月額料金 | 有(2台)/- | ||
| 土地の敷金/保証金 | -/- | 借地料/借地期間 | -/- |
| 土地権利 | 所有権 | 土地面積(坪数) | 108.46㎡(32.80坪) |
| 傾斜地部分面積 | - | 路地状敷地 | - |
| 私道負担面積/セットバック | -/無 | 高圧線下面積 | - |
| 地目/地勢 | 宅地/平坦 | 接道状況 | 一方(南 公道 6.0m) |
| 建ぺい率/容積率 | 60%/200% | 用途地域 | 第一種中高層住居専用 |
| 都市計画 | - | 種別/構造 | 中古一戸建/木造 |
| 階建 | 2階建 | 築年月(築年数) | 2017年 3月 (築8年) |
| 総区画数/販売区画数 | 1区画/1区画 | 向き | 南 |
| 現況 | 空家 | その他の法令上の制限 | 高度地区 |
| 取引態様/引渡時期 | 仲介/即時 | 建築確認番号 | - |
| 物件番号 | 99634792 | 取引条件の有効期限 | 2026年01月30日 |
| リフォーム |
2025年8月 キッチン トイレ 壁 |
||
| 設備条件 |
|
||
| 備考 | 伊丹市寺本5丁目中古戸建:阪急伊丹線伊丹駅にも近くて便利♪物件の向きは南向きです♪中古住宅を選ぶ際にニーズの高い築8年の物件です♪通風良好なので、いつでも新鮮な空気がはいってきます♪不動産をお探しなら、当社にお任せください♪お住まいが変われば、生活が変わります♪当社では、よりよい生活を送るためのお手伝いをいたします♪ぜひご利用くださいませ(^_^) | ||
| 取扱会社 |
|
||
※地図上に表示される物件の位置は付近住所に所在することを表すものであり、実際の物件所在地とは異なる場合がございます。


















