宝塚長尾パークホームズの過去掲載物件情報現況の確認はお気軽にお問い合わせください。
| 所在地 | 兵庫県宝塚市長尾町 | ||
|---|---|---|---|
| 交通 | |||
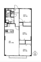
| 築年月(築年数) | 1995年 11月 ( 築30年 ) | 方位 | 南東 |
| 種別/構造 | 中古マンション/鉄筋コンクリート | 所在階/階建 | 6階/ 6階建 |
| 設備条件 |
|
||
【外観】【宝塚長尾パークホームズ】地上6階建 総戸数51戸 ご紹介のお部屋は最上階6階部分です♪
伊丹市の不動産|ネクストホープ不動産販売 > (マンション(売買))路線・駅から探す > JR福知山線 > 中山寺駅 > 宝塚長尾パークホームズ
| 所在地 | 兵庫県宝塚市長尾町 | ||
|---|---|---|---|
| 交通 | |||
| 築年月(築年数) | 1995年 11月 ( 築30年 ) | 方位 | 南東 |
| 種別/構造 | 中古マンション/鉄筋コンクリート | 所在階/階建 | 6階/ 6階建 |
| 設備条件 |
|
||
【外観】【宝塚長尾パークホームズ】地上6階建 総戸数51戸 ご紹介のお部屋は最上階6階部分です♪
件
件
件
件
