宝塚・清荒神ヒルズ 9階
★宝塚・清荒神ヒルズ:阪急宝塚本線清荒神にも近くて便利♪
★トーホーストア 宝塚旭町店まで443mです♪
★来訪者の顔が見えるTVインターホン付き♪
★専有面積70.34㎡もあるお部屋で快適な生活をしましょう♪
★住まい探しで大切なことは、その住まいがどれだけあなたの生活スタイルに適しているかです♪
★こだわりやご要望などあれば、当社にお任せください(*^^*)
ローンシミュレーションこの物件を購入した場合の、月々の支払い価格の一例です。借り入れを保証するものではございません。
- 返済期間
-
- 金利
-
- ボーナス時の増額(1回分)
-
- 借入金額:
-
- 頭金:
-

- 毎月の返済額:
(※元利均等方式 金利5.00%まで ※返済年数5~50年まで入力できます)
(※ボーナスは年2回で計算しています。1000万円まで入力できます)
(※物件購入時、その他諸費用が発生する場合がございます)
担当者のコメント NEXTHOPE株式会社

- 月額10000円で駐車場を利用することができます☆玄関にダウンライトがついていて日頃の生活に役立ちます☆TVインターホン付きなので、女性の方も安心です☆すぐに入居できるので、お待ちいただくことはありません☆当社はお客様の住まい探しをサポートし、快適な暮らしができるようにしっかりとお手伝いいたします☆住まい探しのご依頼は、メール又はお電話にてご連絡をお待ちしております(^o^)
ポイント・特徴
物件概要
【中古マンション】 物件番号:74272930 情報更新日:2026年05月16日 次回更新予定日:2026年05月30日| 所在地 | 兵庫県宝塚市旭町1丁目 | ||
|---|---|---|---|
| 交通 | |||
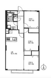
| 間取り/詳細 | 3LDK | ||
| 専有面積/バルコニー面積 | 70.34㎡/10.80㎡ | ルーフバルコニー面積/テラス面積/専用庭面積 | -/-/- |
| 価格 | 3,048万円 | ||
| 管理費 | 8,200円 | ||
| 修繕積立金 | 16,500円 | 修繕積立基金 | - |
| 権利金 | - | 駐車場/月額料金 | 空有(1台)/10,000円 (非課税) 月額:10,000円~15,000円 |
| 土地の敷金/保証金 | -/- | 借地料/借地期間 | -/- |
| 土地権利 | 所有権 | 国土法届出要否 | 不要 |
| 用途地域 | 第二種中高層住居専用 | 地勢 | - |
| 種別/構造 | 中古マンション/鉄骨鉄筋コンクリート | 向き | 南東 |
| 築年月(築年数) | 1996年 2月 (築30年) | ||
| 所在階/階建 | 9階/12階建 | 棟総戸数/販売戸数 | 150戸/1戸 |
| 管理組合有無 | 有 | 管理形態 | 管理会社に全部委託 |
| 管理員の勤務形態 | 日勤 | 管理会社 | 野村不動産パートナーズ(株) |
| 取引態様 | 仲介 | 現況 | 空家 |
| 引渡し | 即時 | 建築確認番号 | - |
| 物件番号 | 74272930 | 取引条件の有効期限 | 2026年05月30日 |
| リフォーム |
2022年8月 キッチン 浴室 トイレ 壁 床 全室 洗面台 建具 |
||
| 設備条件 |
|
||
| 備考 | 新生活を失敗せず、スタートさせたいならこちらの「宝塚・清荒神ヒルズ」はいかがでしょうか♪薬や日用品を買うのに便利なココカラファイン 宝塚旭町店まで391mです♪すぐに入居できるので、お待ちいただくことはありません♪住まい探しで大切なことは、その住まいがどれだけあなたの生活スタイルに適しているかです♪こだわりやご要望などあれば、当社にお任せください(^o^) | ||
| 取扱会社 |
|
||
※地図上に表示される物件の位置は付近住所に所在することを表すものであり、実際の物件所在地とは異なる場合がございます。


















